Vendita
Biassono, via Donizetti 46, villa per due nuclei familiari
BIASSONO (MB)
Tratt. riservata
VENDUTO - Biassono, in via Gaetano Donizetti al civico 46 proponiamo in vendita ampia villa ideale anche per due nuclei familiari.
La villa originariamente costituita da due unità immobiliari totalmente indipendenti; impianti ed ingressi (pedonale e carraio) solo recentemente è stata oggetto di fusione (facilmente ripristinatile allo stato originario) per tanto è acquistabile nella sua interezza con i benefici prima casa.
Composizione piano terra: ingresso da porta blindata, soggiorno doppio di rappresentanza (circa 50 mq.) con camino e portafinestra su giardino privato, disimpegno, cucina abitabile con porta finestra su giardino privato, due bagni finestrati, due camere da letto (di cui una attualmente allestita a studio con ingresso privato da porta blindata), locale dispensa (finestrato) con attacchi per seconda cucina.
Composizione piano primo: due camere da letto matrimoniali entrambe con porta finestra su balcone proprio, bagno finestrato, ripostiglio.
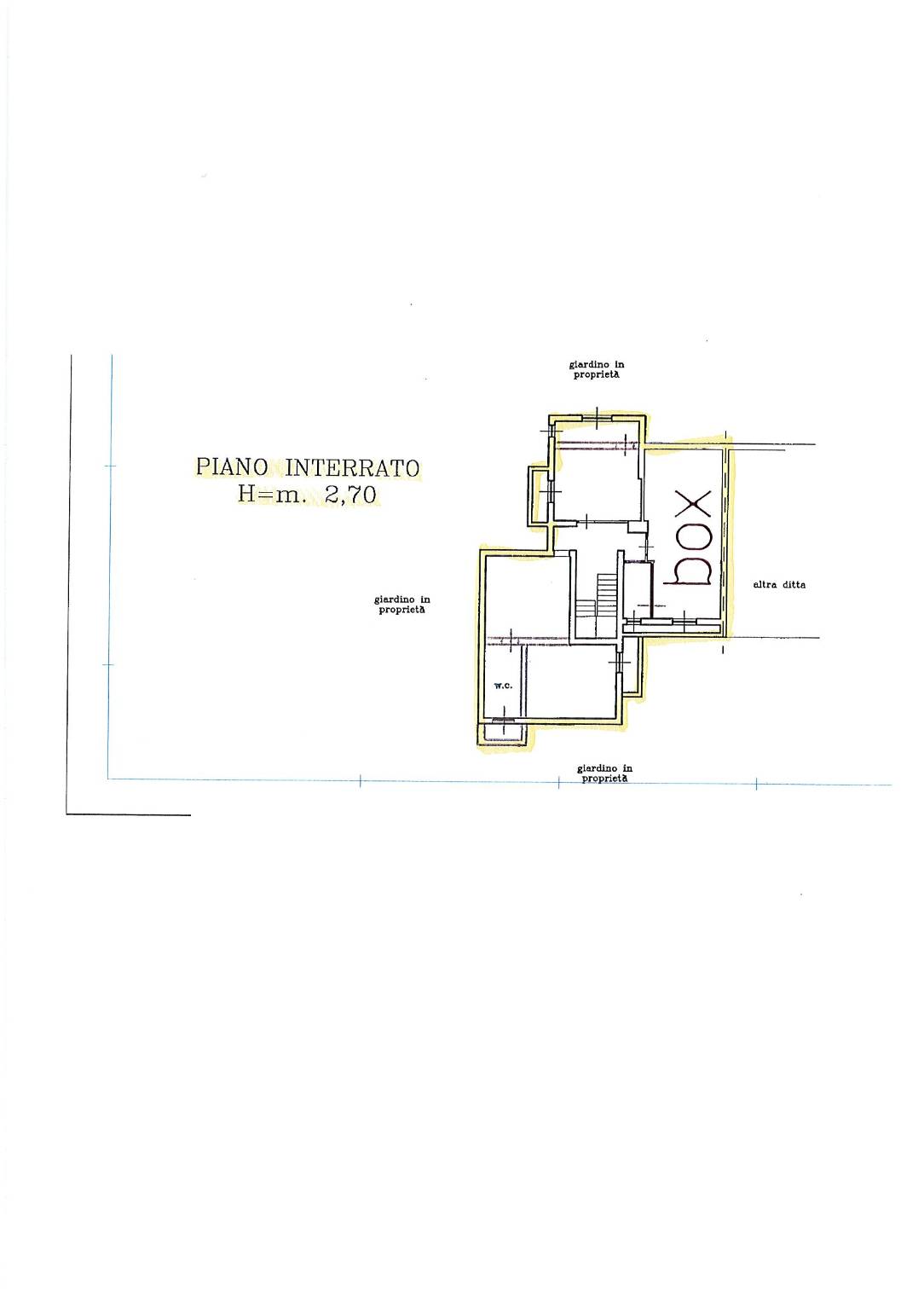
Composizione piano interrato: taverna, palestra, lavanderia, studio, cantina oltre autorimessa doppia quantificata a parte in euro trentamila/00 l'acquisto della stessa è imprescindibile.
Informazioni sulla localizzazione: Inserita in signorile contesto residenziale, nelle immediate vicinanze di Vedano, Seregno e Monza.
Soluzione ideale per chi è alla ricerca di due unità immobiliari indipendenti al fine di ospitare nella più totale privacy degli spazi o per chi voglia esercitare la professione in un unità attigua alla propria abitazione, gli accessi al piano terreno sono privi di barriere architettoniche e per tanto ben si presta per parte della metratura come unità appendice destinata a persone con difficoltà motorie.
Note / Dotazioni : Libera su tre lati, impianto di irrigazione, impianto d'allarme di ultima generazione, cancello carraio e basculante garage (di sicurezza) motorizzata, aria condizionata al piano primo, in perfetto stato di manutenzione; ultime opere eseguite nel 2023.
Libera subito.
Per informazioni e appuntamenti : Tiziano Riva 335.1453992 (chiavi in sede).
immobiliare Arcore, via Casati 88, Arcore (MB).
La villa originariamente costituita da due unità immobiliari totalmente indipendenti; impianti ed ingressi (pedonale e carraio) solo recentemente è stata oggetto di fusione (facilmente ripristinatile allo stato originario) per tanto è acquistabile nella sua interezza con i benefici prima casa.
Composizione piano terra: ingresso da porta blindata, soggiorno doppio di rappresentanza (circa 50 mq.) con camino e portafinestra su giardino privato, disimpegno, cucina abitabile con porta finestra su giardino privato, due bagni finestrati, due camere da letto (di cui una attualmente allestita a studio con ingresso privato da porta blindata), locale dispensa (finestrato) con attacchi per seconda cucina.
Composizione piano primo: due camere da letto matrimoniali entrambe con porta finestra su balcone proprio, bagno finestrato, ripostiglio.
Composizione piano interrato: taverna, palestra, lavanderia, studio, cantina oltre autorimessa doppia quantificata a parte in euro trentamila/00 l'acquisto della stessa è imprescindibile.
Informazioni sulla localizzazione: Inserita in signorile contesto residenziale, nelle immediate vicinanze di Vedano, Seregno e Monza.
Soluzione ideale per chi è alla ricerca di due unità immobiliari indipendenti al fine di ospitare nella più totale privacy degli spazi o per chi voglia esercitare la professione in un unità attigua alla propria abitazione, gli accessi al piano terreno sono privi di barriere architettoniche e per tanto ben si presta per parte della metratura come unità appendice destinata a persone con difficoltà motorie.
Note / Dotazioni : Libera su tre lati, impianto di irrigazione, impianto d'allarme di ultima generazione, cancello carraio e basculante garage (di sicurezza) motorizzata, aria condizionata al piano primo, in perfetto stato di manutenzione; ultime opere eseguite nel 2023.
Libera subito.
Per informazioni e appuntamenti : Tiziano Riva 335.1453992 (chiavi in sede).
immobiliare Arcore, via Casati 88, Arcore (MB).
Contratto Vendita
Rif Biassono46
Prezzo Tratt. riservata
Provincia Monza Brianza
Comune Biassono
Indirizzo Via Alberto da Giussano">
Vani 5
Camere 4
Bagni 4
Classe energetica
B (DL 192/2005)
EPI 95.21 kwh/m2 anno
Riscaldamento autonomo
Condizioni ottime condizioni
Anno di costruzione 1982
Arredato si
Cucina abitabile
Consistenze
| Descrizione | Superficie | Sup. comm. |
|---|---|---|
| Principali | ||
| Immobile - piano terra | 140 Mq | 140 Mqc |
| Immobile - 1° piano | 62 Mq | 62 Mqc |
| Cantina - piano interrato | 102 Mq | 51 Mqc |
| Box/Garage - piano interrato | 40 Mq | 20 Mqc |
| Giardino/Resede | 425 Mq | 42 Mqc |
| Esterno - piano terra | 25 Mq | 12 Mqc |
| Balcone - 1° piano | 10 Mq | 5 Mqc |
| Totale | 332 Mqc | |

















































